旧房改造丨48㎡轻奢小三房
人类天生渴望生活在阳光下,这也是老旧小区改造急需满足的需求。尽管这套房子状况破旧、狭小、阴暗、有漏水等缺陷,但仍被购买,原因仅仅是学区房。为了弥补房子本身的缺陷,可以通过精心设计来改善它的生存环境。
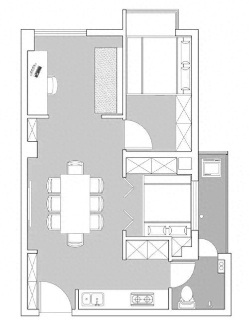
平面布置图
旧房改造 
玄关/厨房
旧房改造 
▲鞋柜在进门的左手边,而厨房位置调整道进门右手,不仅成功地优化了入户与厨房区域之间的距离,还彻底改变了原本下厨等于“关小黑屋”的局面。现在,家人们可以方便地在进门后直接进入厨房,轻松地进行烹饪活动,而不必再被困在一个狭小、不透明的空间里。这一改动不仅带来了更加舒适的生活体验,还为家庭成员之间的互动和交流提供了更多的机会。
旧房改造 
▲通过设计开放式空间格局,家庭成员之间的互动更加密切,也为厨房活动提供了更多的空间和灵活性。这个厨房配备了各种设备,包括嵌入式蒸箱烤箱和冰箱,这些设备的使用方便和高效性,使得烹饪变得更加轻松和愉快。
餐厅
旧房改造 
▲餐厅是整个场所占据面积最大的区域,我们在这里精心安置了一张宽敞的一米八餐桌。这个区域不仅仅是用于进餐,同时也是小朋友们的乐园,他们可以在这里玩耍、做手工、涂涂画画,尽情释放他们的创意和想象力。
旧房改造 
▲进入餐厅,我们会被那些丰富多彩的软装和配色所吸引。这些精心挑选的元素让整个空间散发出一种温馨而舒适的氛围,仿佛置身于一个热情洋溢的家庭中。从柔和的灯光到柔软的椅子,每个细节都体现了对屋主舒适体验的关注。这是一个让人愿意停留下来,慢慢享受美食和时光的地方。
主卧
旧房改造 
旧房改造 
▲主卧面积有限,因此采用了榻榻米的设计,既方便日常起居,又节约空间。此外,设计师还巧妙地打造了一个到顶的衣柜,为主人提供了充足的存储空间,同时也不会占用过多的室内面积。
次卧
旧房改造 
▲虽然房子的面积很有限,只有几十平方米,但是却要容纳6个人的生活需要,这让家里的空间显得尤其紧张。为了解决这个问题,家人们决定在餐厅的区域挤出一间小卧室,这样就能多出一间房间供人居住。虽然这间小卧室的面积很小,但是经过家人们的巧妙设计,卧室里的空间被合理利用,布置得十分温馨舒适。
旧房改造 
▲选择了折叠门作为卧室的门,这样可以在需要的时候方便地将门折叠起来,节省空间的同时也增加了整个房子的美观度。
百变空间
旧房改造 
旧房改造 
▲这个空间设计得非常智能,可以根据不同的需求灵活切换。最常见的形态是将客厅和书房合二为一,这样可以方便地处理一些工作和娱乐事项。
旧房改造 
▲为了保证室内采光效果最佳,窗帘是采用了木百叶,这不仅可以控制阳光的进入,还可以为室内增添一份自然的气息。
旧房改造 
▲如果需要,沙发还可以变成一张舒适的床,让你可以在家中享受一夜好眠。而且,当你需要一间私密的卧室时,只需拉上隔断帘,就可以轻松地将这个空间变成一个私人的休息室。
卫生间
旧房改造 
▲卫生间面积虽然不大,所以设计师在色彩及材料搭配上也是尽可能的简洁,从而才视觉上让其看起来更大些。